Accéder au contenu principal

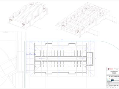
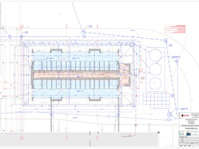
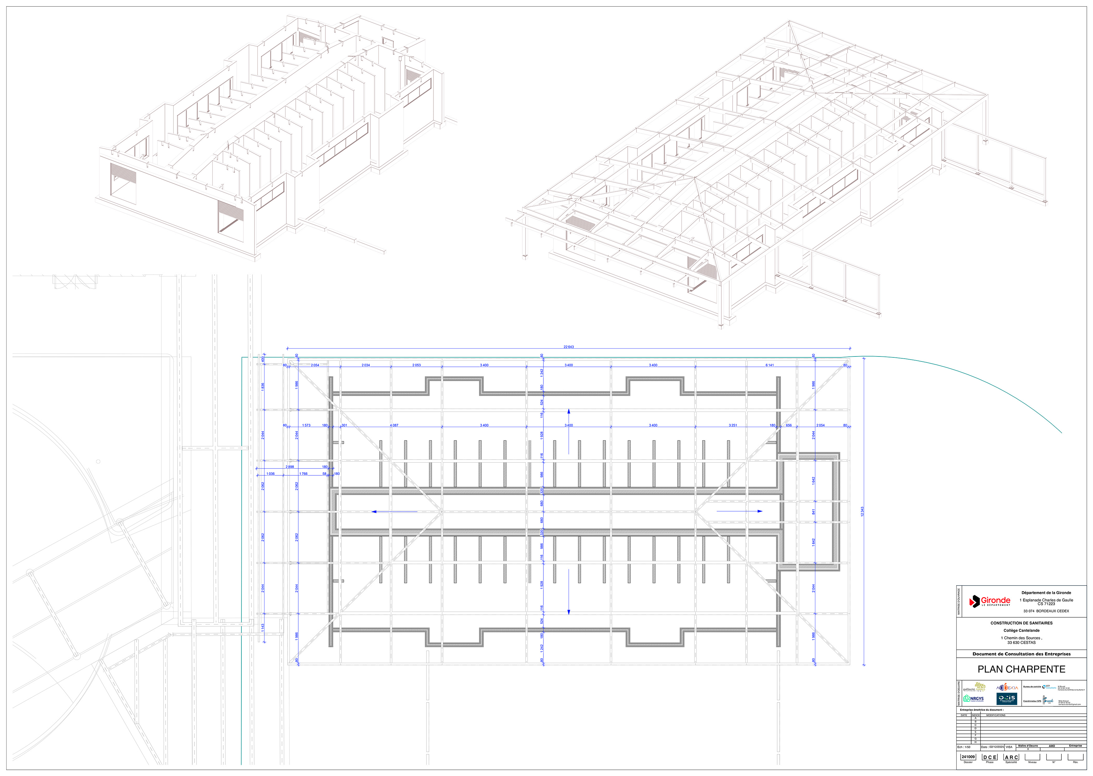
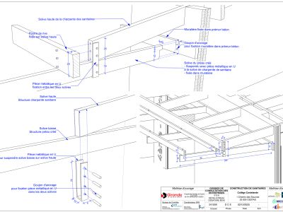
CONSTRUCTION DE SANITAIRES POUR UN COLLÈGE

Intervenants
  1. Maîtrise d'ouvrage
    DÉPARTEMENT DE LA GIRONDE
  2. Maîtrise d'œuvre :
  1. ARCHITECTE
    Guillaume Ricklin
  2. BET STRUCTURE
    OCIS
  3. BET THERMIQUE ET FLUIDES
    NRGYS
  4. BET VRD
    ADDEXIA
Informations
  1. Livraison
    EN COURS
  2. Superficie
    305 m²
  3. Montant des travaux
    600 000 €.h.t